Book a FREE house valuation now
4 bedroom Detached house for sale

Orchard Place, Thornton, Liverpool

£610,000

Wiltshire SHOWHOME RELEASE – The incredible opportunity to purchase the most stunning showhome has arrived. To be sold as seen and including the impressive full furniture package and all upgrades, the Wiltshire showhome is ready to move in to. Don’t miss this opportunity and contact us today.

This exceptional family home which boasts an OPEN PLAN KITCHEN, DINING & FAMILY area, a UTILITY room, two EN-SUITE bathrooms, FAMILY BATHROOM and a DOUBLE INTEGRATED GARAGE.

EASYMOVE scheme available, let us help you sell your home!

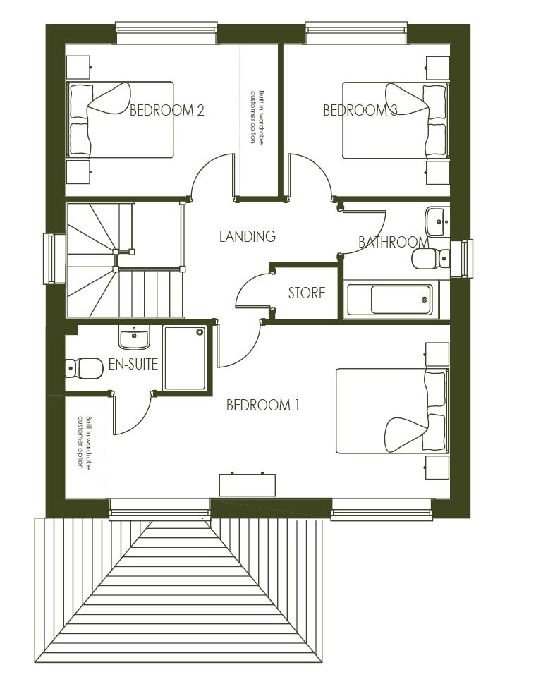
About The Wiltshire
If you’re looking for a seriously spacious new home in Thornton, then The Wiltshire is certainly for you. Upon entering this lavish 4-bedroom home, you are greeted with an open hallway. To the left you will find a generous lounge with a standout bay window allowing light to flood in. To the rear of the ground floor, you will find a magnificent 30ft open plan kitchen/dining/family area. French doors lead out into the garden from the kitchen, allowing the outside to blend perfectly with the interiors. Whilst the cloakroom, utility area and an integrated double garage are desirable features fit for modern family life. Upstairs there is a luxurious and imposing master bedroom with en-suite, along with an impressive guest suite and two other generously sized bedrooms and family bathroom.

About the Development
Thornton is handily located, with easy access to all major cities across the North West, making it great for commuters as well as families. Less than 10 minutes from Crosby, with excellent links to Liverpool, Manchester and Southport. While there are great links to major cities, there is also plenty of beautiful landscapes to explore. From stunning beaches and coastlines to wonderful woodland trails, Thornton provides an ideal urban backdrop with easy access to the city and countryside.

Be sure to speak to our team today and secure your dream home at Orchard Place, Thornton.

Kitchen

Utility

Lounge

Family

Cloaks

Garage

Bedroom 1

Bedroom 2

Bedroom 3

Bedroom 4

En Suite 1

En Suite 2

Dressing

Bathroom

  • This field is for validation purposes and should be left unchanged.
  • This field is for validation purposes and should be left unchanged.
  • This field is for validation purposes and should be left unchanged.
  • Current Landlords Details