Book a FREE house valuation now
3 bedroom Detached bungalow for sale

Mount House Road, Formby, Liverpool

Offers in excess of £490,000

Nestled in the heart of Formby along the highly desirable Mount House Road, this fabulous and deceptively spacious three-bedroom detached bungalow offers an exceptional opportunity for those seeking generous, light-filled accommodation on one level, without compromising on space or versatility. Ideally positioned close to Formby Village, a wealth of local amenities, and excellent transport links including the nearby bypass for commuting, this home perfectly balances convenience with a peaceful residential setting.

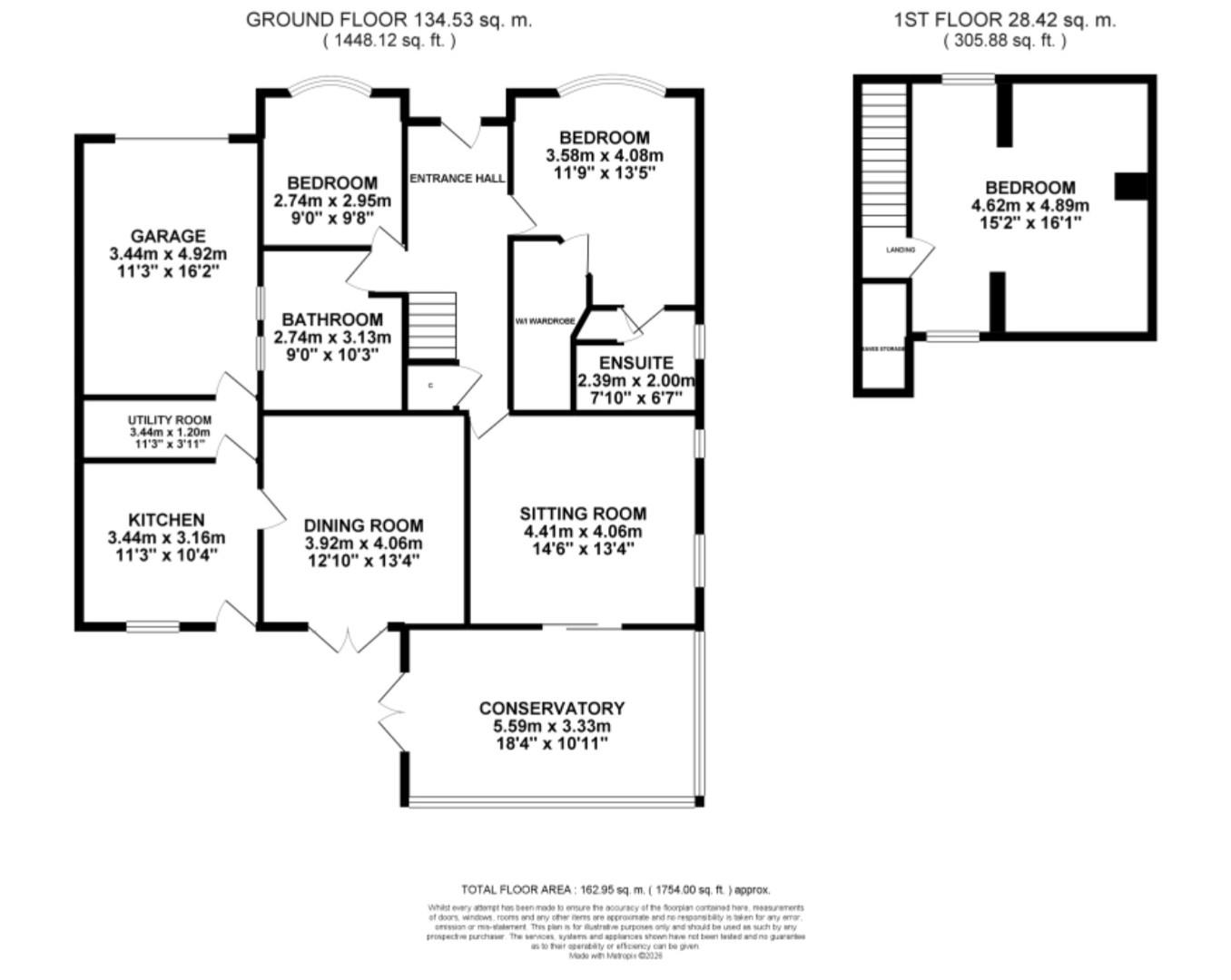
From the outset, the property impresses with its substantial driveway providing ample off-road parking, along with an integral garage. Internally, a welcoming reception hallway sets the tone for the well-planned and spacious layout. To the front of the bungalow are two generous double bedrooms, including a superb primary suite complete with a walk-in wardrobe and a modern en-suite shower room. A well-appointed family bathroom serves this section of the home, all finished to a tasteful and contemporary standard.

To the rear, the property truly comes into its own with an abundance of living space designed to maximise both light and garden views. A comfortable sitting room flows effortlessly into a bright conservatory, creating an ideal space for relaxation. In addition, there is a separate dining room, perfect for entertaining, and a well-equipped kitchen featuring integrated appliances and ample storage. All rear-facing rooms enjoy delightful outlooks over the beautifully maintained, south-facing gardens. A practical utility room provides further convenience and internal access to the garage.

The first floor offers a further spacious double bedroom, providing flexibility for guests, a home office, or additional family accommodation.

Externally, the rear garden is a true standout feature of the property. South-facing and meticulously maintained, it provides a wonderful setting for outdoor dining, entertaining, or simply enjoying the sunshine throughout

General

the day. The space is both private and inviting, making it ideal for a variety of lifestyles.

This versatile home is perfectly suited to those looking to downsize without sacrificing space, as well as families seeking a well-located and adaptable property.

Offered with no onward chain, this is a rare opportunity in a highly sought-after area.

Early viewing is strongly recommended to fully appreciate everything this outstanding bungalow has to offer. Contact Abode Formby today to arrange your viewing.

Don't forget to check the stamp duty calculator https://www.rightmove.co.uk/stamp-duty-calculator

  • This field is for validation purposes and should be left unchanged.
  • This field is for validation purposes and should be left unchanged.
  • This field is for validation purposes and should be left unchanged.
  • Current Landlords Details