Book a FREE house valuation now
3 bedroom Semi-detached house for sale

Meadow View, Tarbock Green

£575,000

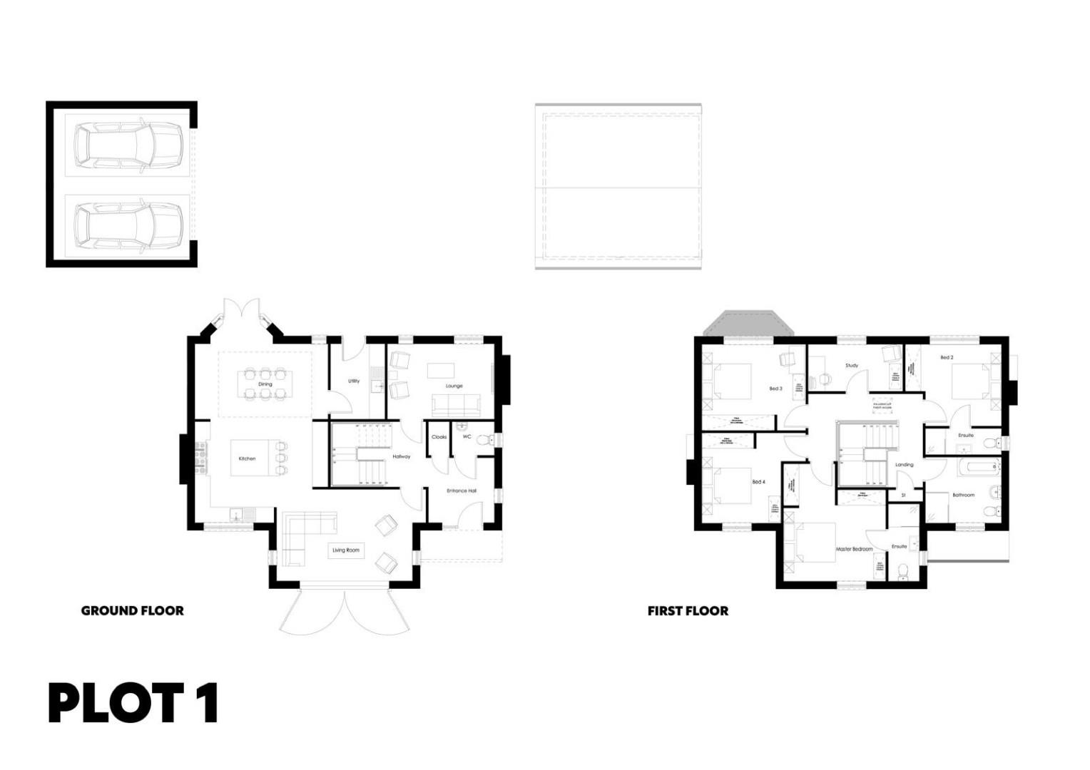
Welcome to Meadow View, a stunning bespoke new build development located in the charming area of Tarbock Green. This exceptional three bedroom home, offers a unique design that sets it apart from the rest, making it a perfect choice for those seeking modern living with a touch of individuality, providing a sense of character and charm that is often hard to find in new builds.

Inside, you will find a spacious open-plan kitchen and dining area that extends the rear of the property ideal for both entertaining guests and enjoying family meals. The contemporary layout ensures that the heart of the home is bright and inviting, with ample space for dining and socialising. With a separate utility and WC. Adjacent to this area is a separate lounge, providing a cosy retreat for relaxation and unwinding after a long day and a study which is perfect for working from home.

The property boasts three well-proportioned bedrooms, including a master suite that features an ensuite bathroom, offering a private sanctuary for the homeowners. The additional bedrooms are perfect for family members or guests, catering to a variety of lifestyle needs. With two bathrooms in total, this home ensures convenience for all occupants, making morning routines and evening wind-downs a breeze.

In summary, this three-bedroom semi-detached house at Meadow View is an excellent opportunity for those looking for a modern, stylish home in a desirable location. This property benefits from a 10 year warranty and is currently under construction with expected build completion estimated the beginning of 2026. The property, with its thoughtful design and spacious living areas, is sure to appeal to families and professionals alike. Do not miss the chance to make this exceptional property your new home.

**Photographs are for illustration purposes only**

Lounge

Hall

Study

Kitchen & Dining Area

Utility

WC

Master Bedroom

Master En-Suite

Bedroom 2

Bedroom 3

Family Bathroom

  • This field is for validation purposes and should be left unchanged.
  • This field is for validation purposes and should be left unchanged.
  • This field is for validation purposes and should be left unchanged.
  • Current Landlords Details