Book a FREE house valuation now
5 bedroom Detached house for sale

Victoria Way, Formby

£750,000

Victoria Way, Formby. Located in one of Formby’s most prestigious Freshfield addresses, this spacious family home is ideally positioned close to the train station, Formby Village, the coast, and the Pinewoods.

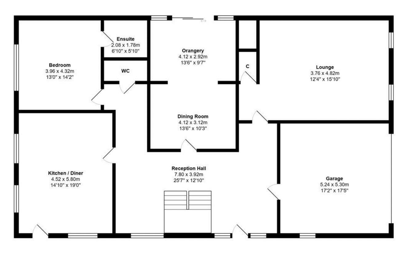
The property features a gated driveway providing parking for several vehicles and a double integral garage. The accommodation includes a large reception hallway, W.C., lounge, dining room opening into an orangery, and a dining kitchen. There is also a ground floor bedroom with an en-suite shower room.

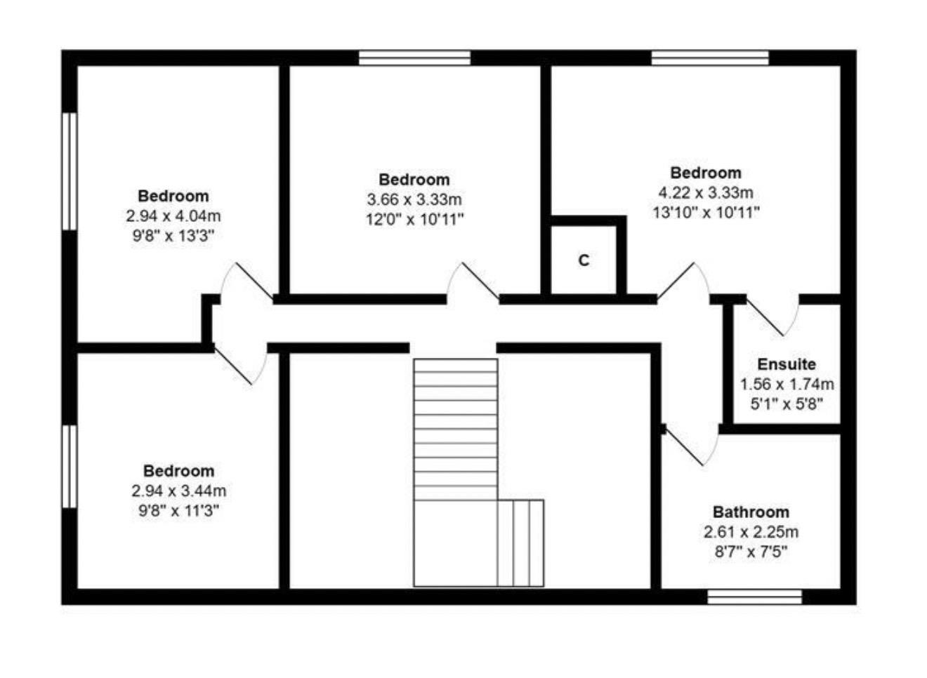
To the first floor are four bedrooms, one with an en-suite shower room, and a family bathroom. Externally, the property benefits from established wrap-around gardens offering a high degree of privacy.

Viewings are recommended call Abode today.

  • This field is for validation purposes and should be left unchanged.
  • This field is for validation purposes and should be left unchanged.
  • This field is for validation purposes and should be left unchanged.
  • Current Landlords Details