Book a FREE house valuation now
4 bedroom Detached house for sale

Orchard Place, Thornton, Liverpool

£539,995

The Sandringham – Large OPEN-PLAN kitchen/dining & family area, LOUNGE, DINING ROOM, Integrated DOUBLE GARAGE and TWO EN SUITE bathrooms.

About The Sandringham

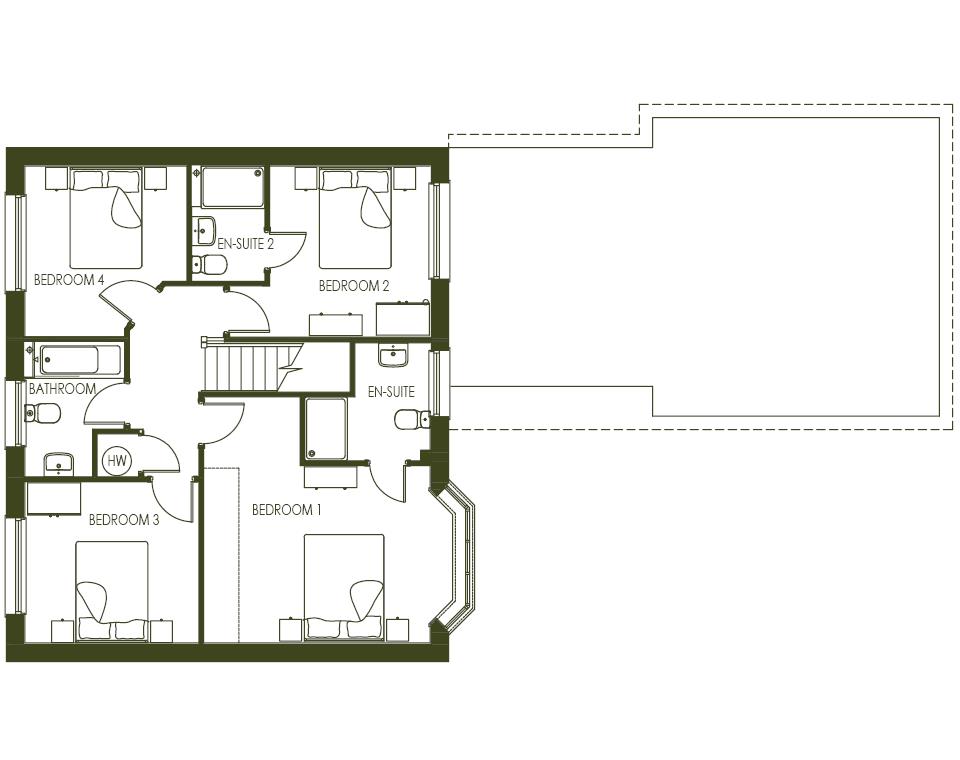
The Sandringham at Orchard Place, Thornton blends family-sized living areas with private spaces for work and relaxation, making it a truly impressive and adaptable modern home. With a 34ft family/dining/kitchen area, spacious separate lounge with an elegant bay window and separate dining room, there is a place for everyone. A family bathroom and four generously-sized bedrooms including a master en suite can be found on the first floor, while the garage provides plenty of space for 2 family cars.

About the development

Thornton is handily located, with easy access to all major cities across the North West, making it great for commuters as well as families. Less than 10 minutes from Crosby, with excellent links to Liverpool, Manchester and Southport. While there are great links to major cities, there is also plenty of beautiful landscapes to explore. From stunning beaches and coastlines to wonderful woodland trails, Thornton provides an ideal urban backdrop with easy access to the city and countryside.

**EASYMOVE SCHEME AVAILABLE – CONTACT US FOR DETAILS**

Kitchen

Dining

Family

Family Room

Living

Cloaks

Utility

Garage

Bedroom 1

Bedroom 2

Bedroom 3

Bedroom 4

Bathroom

En-Suite 1

En-Suite 2

  • This field is for validation purposes and should be left unchanged.
  • This field is for validation purposes and should be left unchanged.
  • This field is for validation purposes and should be left unchanged.
  • Current Landlords Details