Book a FREE house valuation now
4 bedroom Semi-detached house for sale

Norwood Crescent, Southport

Offers in the region of £365,000

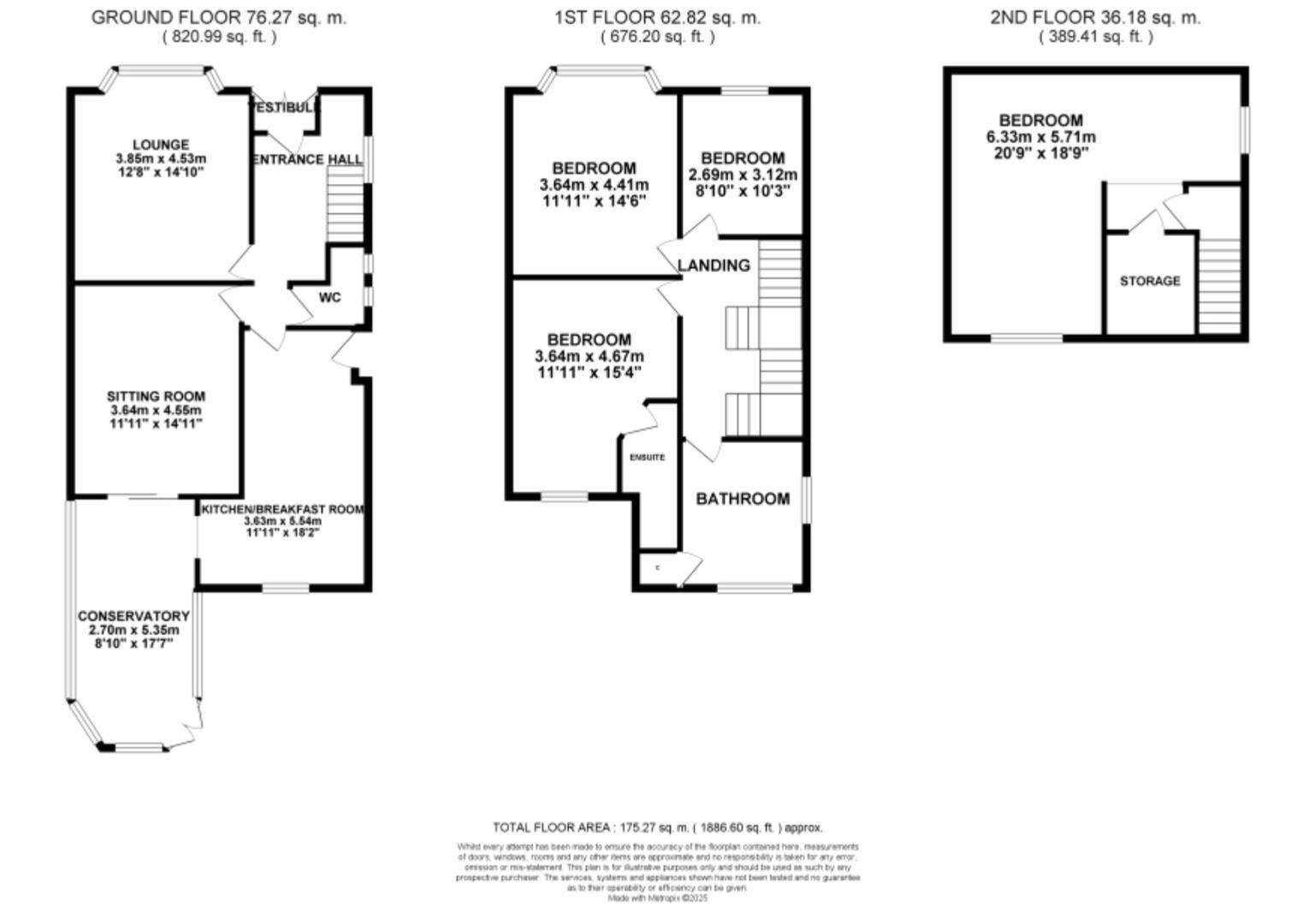
Set within one of Southport’s most desirable residential areas, this impressive four-bedroom semi-detached home offers exceptional space, style, and versatility. Extending to around 2,140 sq. ft., it’s a superb opportunity for families seeking a home that combines modern comfort with a prime, convenient location.

From the moment you step inside, there’s a real sense of warmth and flow. The ground floor offers two generous reception rooms, both filled with natural light , perfect for entertaining, relaxing, or family time. A third reception room adds great flexibility, ideal as a home office, snug, or playroom depending on your needs.

At the heart of the home sits a stylish, contemporary kitchen, complete with integrated appliances, ample storage, and workspace, the perfect space for cooking and gathering. A ground floor WC adds practicality for busy family life.

Upstairs, there are four well-proportioned bedrooms, including a spacious primary suite with en-suite shower room, while the remaining bedrooms share a beautifully finished four-piece family bathroom with quality fittings and a fresh, modern feel.

Externally, the property continues to impress with a private driveway offering ample off-road parking and a sunny rear garden, ideal for summer entertaining or simply relaxing in a peaceful setting.

The location is another highlight, just a short stroll from the historic Churchtown Village, where you’ll find charming independent shops, traditional pubs, and the beautiful Botanic Gardens. Excellent local schools and transport links make this a perfect choice for families.

A superb home offering space, comfort, and a sought-after address, early viewing is highly recommended to appreciate everything on offer.

Call Abode Today.

EPC: E
Council Tax Band: D
Tenure: Freehold

  • This field is for validation purposes and should be left unchanged.
  • This field is for validation purposes and should be left unchanged.
  • This field is for validation purposes and should be left unchanged.
  • Current Landlords Details