Book a FREE house valuation now
3 bedroom End of terrace house for sale

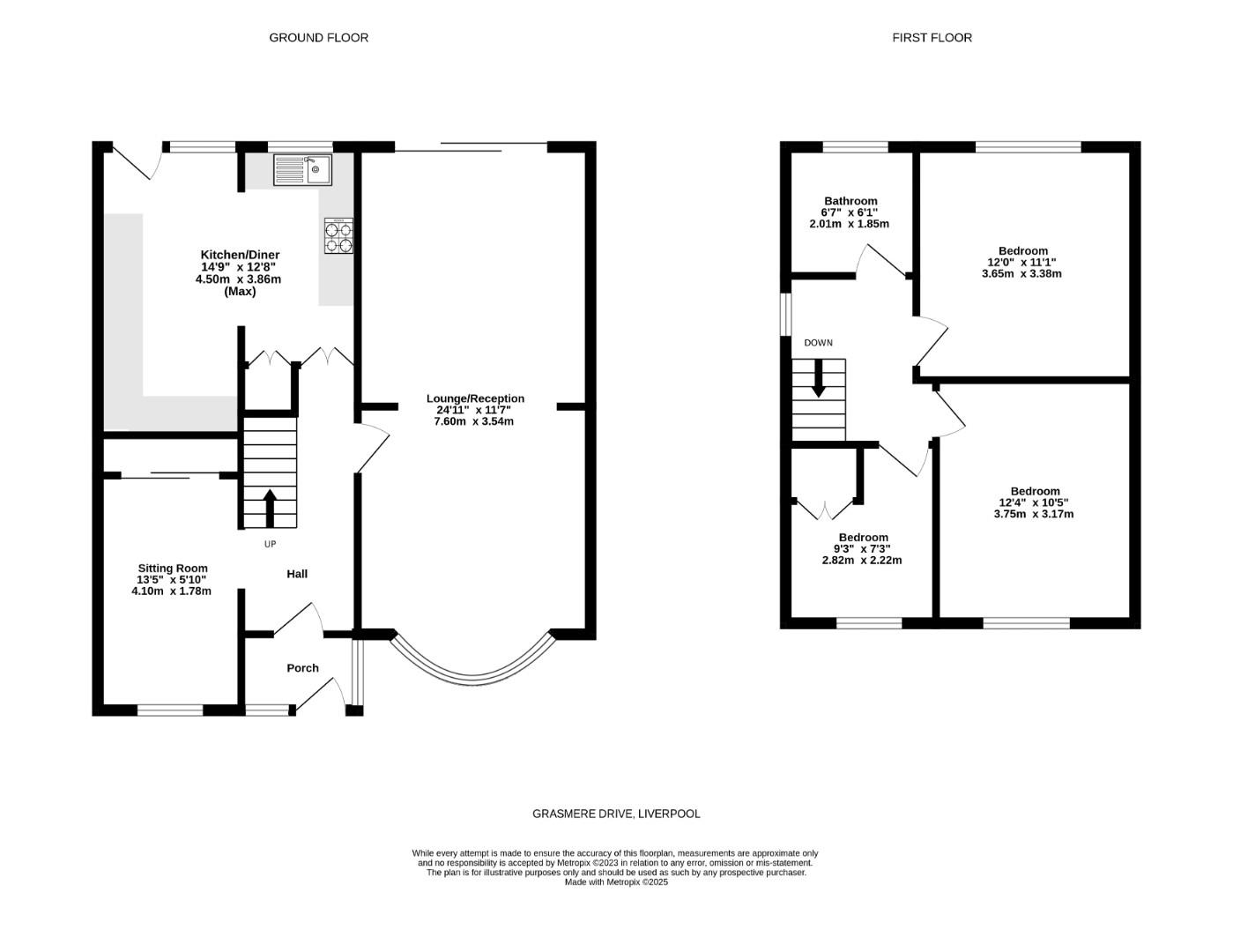
Grasmere Drive, Liverpool

£200,000

* NO CHAIN*
This end terrace house presents a fantastic opportunity for those looking to create their dream home. While the property is in need of modernisation throughout, it boasts a generous layout that is sure to appeal to families and individuals alike.

Upon entering, you are greeted by a welcoming porch and hallway that leads to a versatile sitting room, perfect for those who work from home or require additional space. The through lounge offers a comfortable area which then flows through to the kitchen dining area with convenient access to the garden, making it a delightful spot for outdoor dining during the warmer months.

The first floor comprises three well-proportioned bedrooms, providing ample space for family living or guest accommodation. A shower room completes this level.

Externally, the property features a paved off-road parking area, a valuable asset in urban living. The garden, laid to lawn, offers a blank canvas for gardening enthusiasts. Additionally, an outbuilding provides extra storage or potential for a workshop.

With no onward chain, this property is ready for its new owners to make their mark. Whether you are a first-time buyer or an investor looking for a project, this end terrace house on Grasmere Drive is a promising prospect in a sought-after location. Embrace the chance to transform this house into a beautiful home tailored to your tastes.

  • This field is for validation purposes and should be left unchanged.
  • This field is for validation purposes and should be left unchanged.
  • This field is for validation purposes and should be left unchanged.
  • Current Landlords Details