Book a FREE house valuation now
5 bedroom Semi-detached house for sale

Brookfield Avenue, Crosby, Liverpool

£400,000

This stunning semi-detached house offers an exceptional living experience for families seeking both space and comfort.

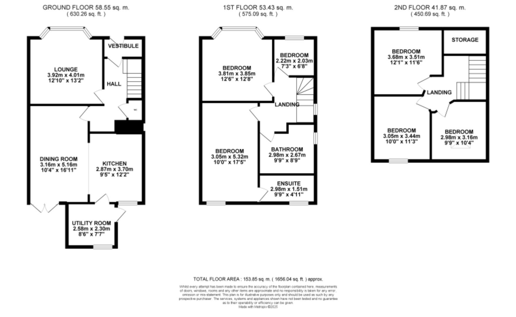
As you step inside, you are greeted by a tastefully decorated interior that exudes warmth and character. The ground floor features a welcoming lounge, complete with a cosy woodburner, perfect for those chilly evenings. The open-plan dining room flows effortlessly into the kitchen, creating an inviting atmosphere ideal for family gatherings and entertaining friends. Additionally, the practicality of a utility room and a convenient ground floor W.C. enhances the overall functionality of the home.

The first floor boasts TWO well-proportioned bedrooms, providing ample space for family members or guests, while the family bathroom and en-suite shower room cater to the demands of a busy lifestyle. ***There is also a small bedroom which is currently utilised as a private office. Ascending to the top floor, you will find THREE further bedrooms, along with additional storage space.

The property is complemented by a delightful south-facing rear garden, which enjoys plenty of sunshine throughout the day. This well-maintained outdoor space features a grass area, a flagged patio, and a charming covered seating area, making it an ideal spot for relaxation and outdoor entertaining.

Situated just a short stroll from the independent shops on College Road and within an excellent school catchment area, this home is perfectly positioned for families. With its blend of character, space, and modern living, this semi-detached house is a remarkable opportunity to embrace the vibrant community of Crosby. Do not miss the chance to make this delightful property your own. The property is offered as freehold, providing you with complete ownership.

  • This field is for validation purposes and should be left unchanged.
  • This field is for validation purposes and should be left unchanged.
  • This field is for validation purposes and should be left unchanged.
  • Current Landlords Details