Book a FREE house valuation now
3 bedroom Semi-detached house for sale

Brenda Crescent, Liverpool

Offers in the region of £380,000

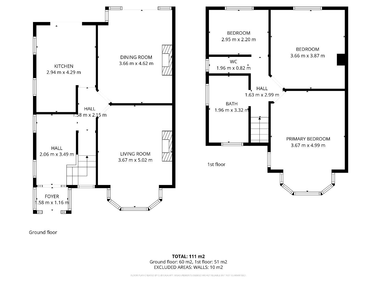
Nestled in the charming area of Brenda Crescent, this stunning semi-detached house is a true gem, perfect for families or those seeking a comfortable home. Immaculately presented and neutrally decorated throughout, this property is ready for you to move in without any hassle.

Upon entering, you are greeted by a spacious entrance hallway that leads to two inviting reception rooms. The front room serves as a cosy lounge, complete with a delightful log burner. The rear reception room can be utilised as a dining area, providing a perfect space for family meals and entertaining guests. The separate fitted kitchen boasts French doors that open onto a lovely south-west facing garden, allowing for an abundance of natural light and a seamless indoor-outdoor living experience.

The first floor comprises three well-proportioned bedrooms, each offering ample space for relaxation and rest. A modern family bathroom suite, featuring a shower cubicle and convenient storage, completes the upper level of this delightful home.

Externally, the property benefits from a front garden and off-road parking, ensuring convenience. To the rear there is a large garage and adjoining outhouse, which includes a WC, provide additional storage.

Notably, this home is equipped with an Ohme ePod Type 2 EV charger, installed in May 2025, reflecting a commitment to modern living. Recent electrical works have ensured that both this property and its neighbour now enjoy independent electricity supplies, complete with newly installed modern main fuses.

This beautiful turn-key home is a rare find and is sure to attract considerable interest. Do not miss the opportunity to make it your own.

  • This field is for validation purposes and should be left unchanged.
  • This field is for validation purposes and should be left unchanged.
  • This field is for validation purposes and should be left unchanged.
  • Current Landlords Details