Book a FREE house valuation now
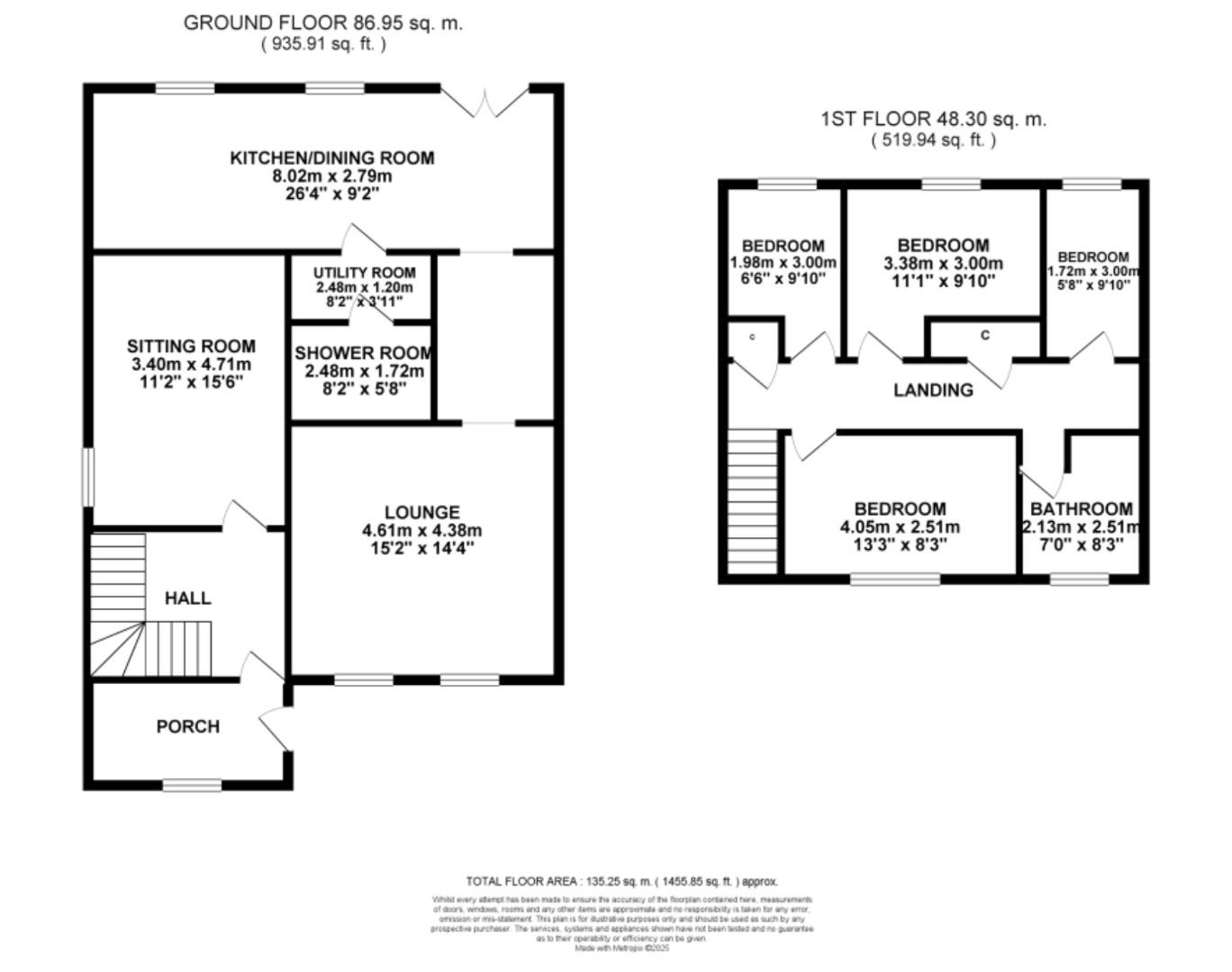
4 bedroom Detached house for sale

Wexford Avenue, Hale Village, Liverpool

Offers over £385,000

Nestled in the charming Hale Village, Liverpool, this superbly presented detached house offers an ideal family home. With four spacious bedrooms and two well-appointed bathrooms, this property provides ample space for comfortable living. The heart of the home is the open plan kitchen and dining room, perfect for entertaining guests or enjoying family meals together.

The property boasts three inviting reception rooms, allowing for versatile use whether you desire a cosy lounge, a playroom, or a study. The thoughtful design ensures that each room is filled with natural light, creating a warm and welcoming atmosphere throughout.

Outside, the house benefits from off-road parking, providing convenience and peace of mind. The picturesque surroundings of Hale Village enhance the appeal of this residence, making it a delightful place to call home. Additionally, the area is well-regarded for its excellent local schools, making it an attractive option for families.

This property is not just a house; it is a wonderful opportunity to enjoy a comfortable lifestyle in a beautiful setting. With its blend of modern living and traditional charm, this home is sure to impress. Do not miss the chance to make this exceptional property your own.

  • This field is for validation purposes and should be left unchanged.
  • This field is for validation purposes and should be left unchanged.
  • This field is for validation purposes and should be left unchanged.
  • Current Landlords Details